Updated on 

各校区位置及平面图

整体示意图

整体示意图

图片

校区平面图

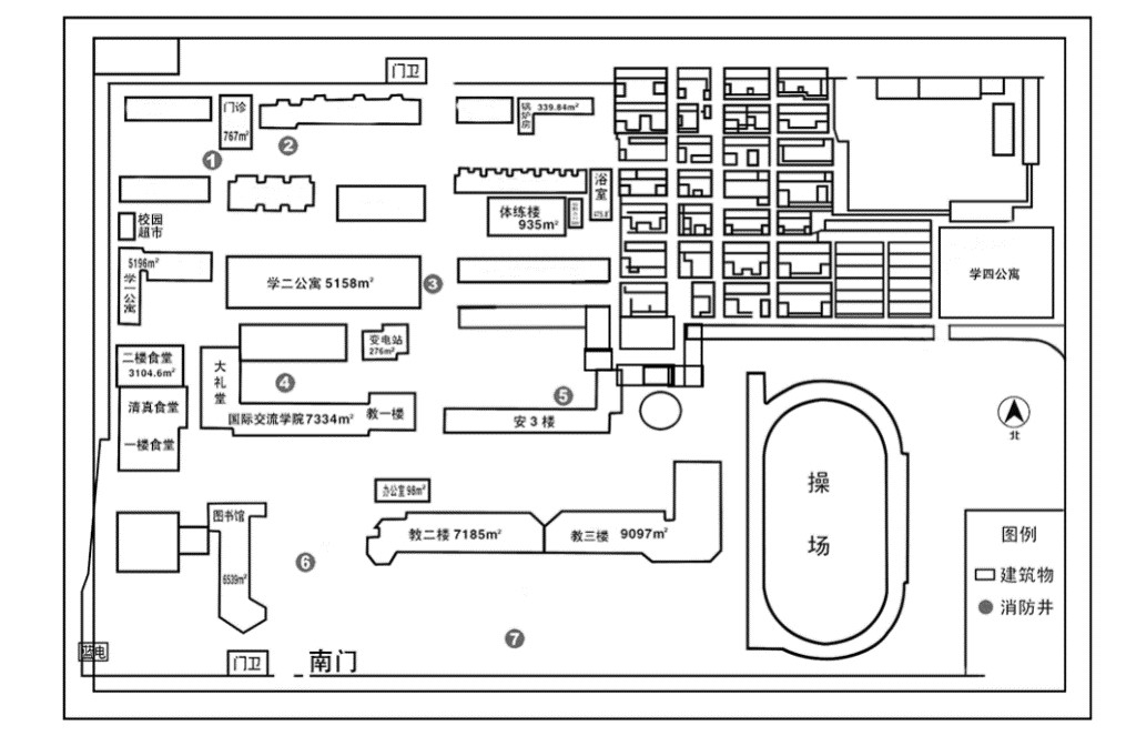
健翔桥校区

图片

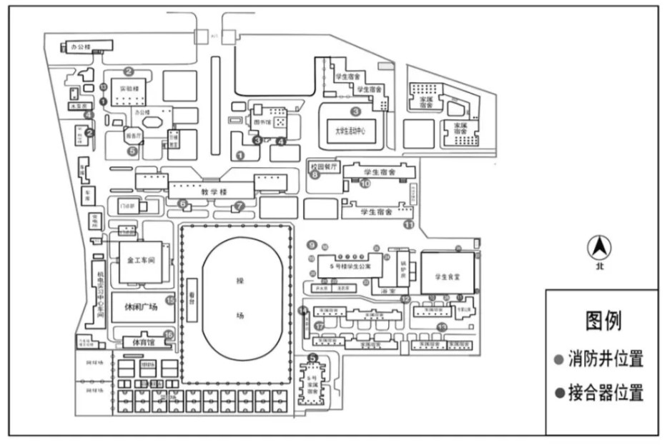
小营校区

图片

清河校区

图片

新校区

图片

本站由 @HanShu 创建。
本指南所有文章除特别声明外,均采用 CC BY-NC-SA 4.0 许可协议,转载请注明出处。